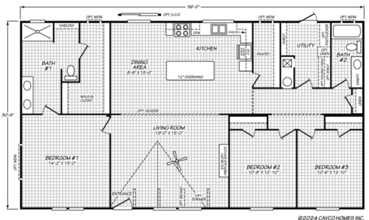
Stylish, spacious, and built with quality, The Edwards offers 1,792 sq. ft. of comfortable living. With 3 bedrooms and 2 bathrooms, this home is designed to balance open living and private spaces for the family. The open-concept floor plan connects the kitchen, dining, and living areas, making it perfect for family gatherings and entertaining. With thoughtful design, durable construction, and modern features, The Edwards delivers lasting value and a place your family will love to call home.
Let's find the right plan for you! The rates of manufactured homes traditionally are higher than other mortgages, 8% is probably the lowest you will get. No minimum down payment can be lower than 5% however the exact rate is depending on your average. Reach out to a consultant for more information.
The Henderson