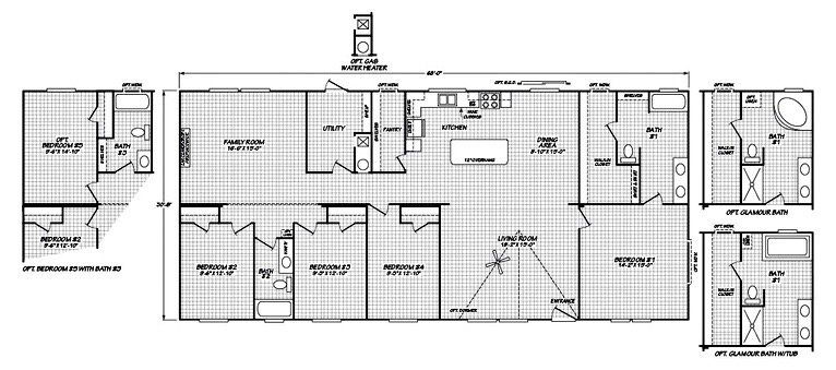
Built for flexibility and family living, The Brown gives you the space and options to create your perfect home. With 4 bedrooms and 2 bathrooms, this home delivers a spacious layout with open living, dining, and kitchen areas designed for comfort and connection. For growing families or those needing extra space, the optional upgrade to 5 bedrooms and 3 bathrooms ensures The Brown adapts right along with your lifestyle. Blending modern design, practical features, and quality craftsmanship, The Brown is a home that puts flexibility first.
Let's find the right plan for you! The rates of manufactured homes traditionally are higher than other mortgages, 8% is probably the lowest you will get. No minimum down payment can be lower than 5% however the exact rate is depending on your average. Reach out to a consultant for more information.
The Edwards