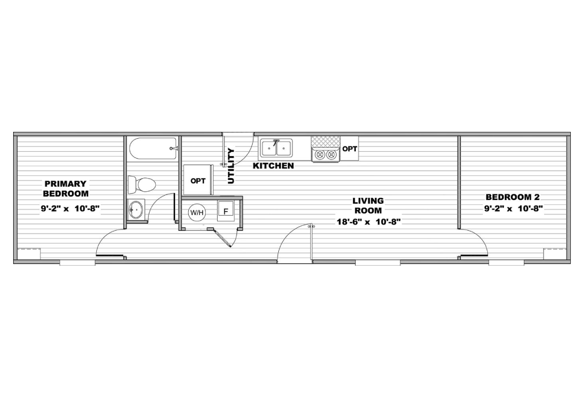
The Sierra is a smart choice for those looking to maximize space without sacrificing style. This 2 bedroom, 1 bathroom home offers 544 square feet of well-designed layout, making it perfect for individuals, couples, or small families.
Inside, you’ll find an open living area that flows seamlessly into the kitchen, creating a welcoming space to relax or entertain. Each bedroom is thoughtfully sized, offering privacy and functionality, while the full bathroom is designed with convenience in mind.
Whether you’re a first-time buyer, downsizing, or looking for an affordable housing solution, The Sierra delivers quality, comfort, and value, all in one compact home.
Let's find the right plan for you! The rates of manufactured homes traditionally are higher than other mortgages, 8% is probably the lowest you will get. No minimum down payment can be lower than 5% however the exact rate is depending on your average. Reach out to a consultant for more information.