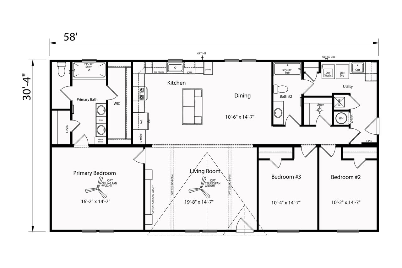
Meet The Amber, a thoughtfully designed 1,759 sq. ft. multi-section home that brings together comfort and functionality. With 3 bedrooms and 2 bathrooms, this layout offers a spacious main living area perfect for gathering, along with private, well-sized bedrooms for everyday relaxation. The Amber is ideal for those looking for a balanced floor plan that delivers both openness and practicality in a modern manufactured home.
Let's find the right plan for you! The rates of manufactured homes traditionally are higher than other mortgages, 8% is probably the lowest you will get. No minimum down payment can be lower than 5% however the exact rate is depending on your average. Reach out to a consultant for more information.
The Sierra