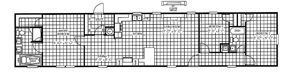
Step inside The Houston, a thoughtfully designed 3-bedroom, 2-bath home offering 1,216 sq. ft. of style, comfort, and efficiency. Built with hardwood cabinets, 2×6 floor joists, and OSB-wrapped smart panel siding, this model is made to last. With an Energy Star efficiency rating (R33-R13-R22), it keeps your home comfortable while saving on energy costs. The Houston brings quality craftsmanship and affordability together for families looking to make New Braunfels home.
Let's find the right plan for you! The rates of manufactured homes traditionally are higher than other mortgages, 8% is probably the lowest you will get. No minimum down payment can be lower than 5% however the exact rate is depending on your average. Reach out to a consultant for more information.
The Bend