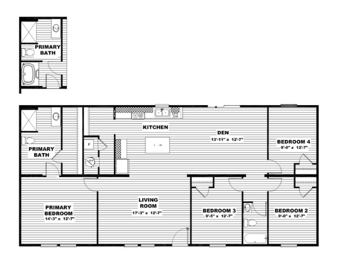
The Bridge is a spacious 4 bedroom, 2 bathroom home offering 1,475 square feet of well-planned living space, designed with an open-concept layout that seamlessly connects the living, dining, and kitchen areas for comfortable everyday living, a private primary suite with its own bathroom and ample closet space, and three additional bedrooms that provide flexibility for family, guests, or a home office, making it an ideal home for growing households that want space, functionality, and long-term value.
Let's find the right plan for you! The rates of manufactured homes traditionally are higher than other mortgages, 8% is probably the lowest you will get. No minimum down payment can be lower than 5% however the exact rate is depending on your average. Reach out to a consultant for more information.
The Union