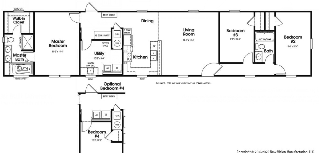
The Angelina is a single-wide home that proves big comfort can come in a compact design. With 3 bedrooms, 2 bathrooms, and 1,216 sq. ft., The Angelina offers an open-concept layout perfect for families or first-time buyers.
This home combines affordability with modern living—giving you space where it matters most, from a welcoming kitchen to cozy bedrooms.
Let's find the right plan for you! The rates of manufactured homes traditionally are higher than other mortgages, 8% is probably the lowest you will get. No minimum down payment can be lower than 5% however the exact rate is depending on your average. Reach out to a consultant for more information.
The Lariat