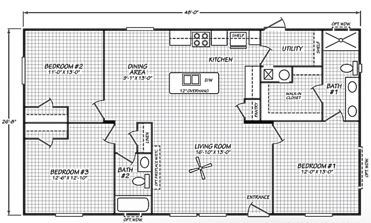
Discover the charm of The Willowbend, a thoughtfully designed 3 bedroom, 2 bathroom home with 1,344 sq. ft. of cozy yet modern living space.
Inside, you’ll find drywall finishes for a sleek look, a warm electric fireplace, and a spacious pantry for everyday convenience. The stainless steel appliances and customizable colors and features let you create a kitchen and living space that fits your style. With upflow vents for better airflow, comfort comes built-in.
The Willowbend is more than a house—it’s your next chapter, designed to fit your life.
Let's find the right plan for you! The rates of manufactured homes traditionally are higher than other mortgages, 8% is probably the lowest you will get. No minimum down payment can be lower than 5% however the exact rate is depending on your average. Reach out to a consultant for more information.
The Timberline