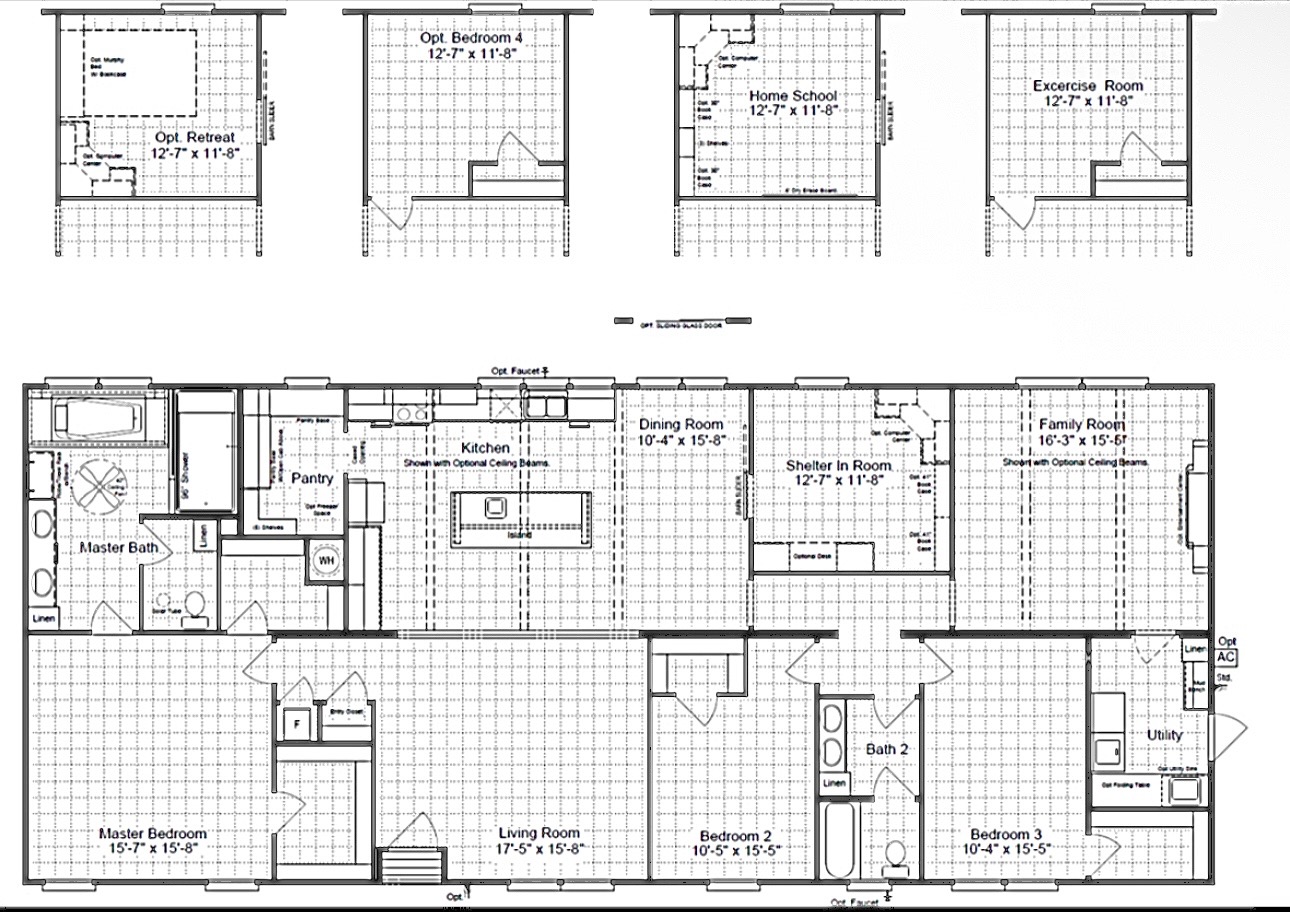
The Longhorn offers the space and comfort you’ve been looking for, with its open space and bold look. With 4 bedrooms and 3 bathrooms, this home is designed to fit large families or anyone who loves extra room to spread out. The open-concept layout connects the living room, dining area, and kitchen for effortless entertaining, while thoughtful details throughout make daily living more comfortable.
The master suite features a private bathroom retreat, and with three additional bedrooms plus two full baths, everyone in the family gets the space they need. The Longhorn combines modern design, practical features, and lasting value – a true Texas-sized home.
Let's find the right plan for you! The rates of manufactured homes traditionally are higher than other mortgages, 8% is probably the lowest you will get. No minimum down payment can be lower than 5% however the exact rate is depending on your average. Reach out to a consultant for more information.
The Dawson